Security Insights & Updates
Stay informed with the latest trends, technologies, and best practices in security and access control systems.

Essential Features for Smart Parking Management System
Explore essential features that make a parking management system truly smart and efficient for modern facilities.

Advanced Technology Use in Car Parking Management System
Discover the latest technological innovations revolutionizing parking management systems.

The Scope of Effective Parking Management System
Analyzing the current scope and future potential of parking management systems.

Improve the Security Aspect with the Parking System
How modern parking systems contribute to overall facility security and management.

AI-Powered Parking Solutions for Smart Cities
How artificial intelligence is transforming urban parking infrastructure and reducing congestion.

Mobile Integration in Modern Parking Systems
The role of mobile apps in enhancing user experience for parking management solutions.

Revenue Optimization Through Smart Parking
How intelligent parking systems can maximize revenue for commercial facilities.

Role of Barriers In Perimeter Protection
Understanding how different types of barriers contribute to effective perimeter security.

Layered Security Approach for Maximum Protection
Implementing multiple security layers for comprehensive perimeter defense strategies.

Advanced Intrusion Detection Systems Comparison
Evaluating different intrusion detection technologies for perimeter security applications.

Anti-Climb Fencing Solutions for High-Security Sites
Specialized fencing solutions designed to prevent unauthorized access attempts.

Perimeter Lighting Strategies for Enhanced Security
How proper lighting enhances perimeter security and deters intruders.

Reasons Why Visitor Management Systems is Important
Discover how visitor management systems enhance security, streamline check-ins, and provide valuable insights.

Applications of Tripod Turnstile Gate
Explore various applications and benefits of tripod turnstile gates in access control.

Utilize Perfect Security Equipment On Site
Guide to choosing and implementing the right security equipment for your facility.

How Does A Baggage Scanner Works
Detailed explanation of baggage scanner technology and its security applications.

Biometric Access Control: The Future of Security Gates
How biometric technology is revolutionizing security gate authentication.

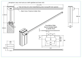
Benefits of Using Automatic Boom Barrier
Learn about the advantages of installing automatic boom barriers for enhanced traffic control and security.

How does the boom barrier contribute toward safety?
Exploring the safety features and benefits of boom barriers in various security applications.

Weather-Resistant Boom Barriers for Outdoor Use
Specialized boom barrier solutions designed to withstand harsh environmental conditions.

Custom Boom Barrier Solutions for Unique Requirements
Tailored boom barrier installations for special applications and challenging environments.

How does Door Frame Metal Detector Work? DFMD Types Explained
Understanding the technology behind door frame metal detectors and their various applications in security.

Advanced DFMD Configurations for High-Security Facilities
Custom DFMD setups for government buildings, airports, and other sensitive locations.

DFMD Sensitivity Calibration Best Practices
Proper techniques for calibrating door frame metal detectors to balance security and convenience.

Smart Boom Barriers with ANPR Integration
How automatic number plate recognition enhances boom barrier functionality and security.

Energy-Efficient Automatic Boom Barrier Solutions
Eco-friendly boom barrier systems with solar power options and low-energy consumption.

Customizable Automatic Boom Barriers for Unique Requirements
Tailored boom barrier solutions for special applications and challenging environments.

Automatic Boom Barrier Maintenance Guide
Essential maintenance procedures to keep your automatic boom barriers operating optimally.

Wireless Control Options for Automatic Boom Barriers
Exploring remote and wireless control solutions for automatic boom barrier systems.